Bought with Robert A Wolf • NAI Commercial Partners, Inc.
For more information regarding the value of a property, please contact us for a free consultation.
Key Details
Sold Price $425,000
Property Type Vacant Land
Sub Type Land
Listing Status Sold
Purchase Type For Sale
MLS Listing ID PALA115534
Sold Date 08/30/19
HOA Y/N N
Annual Tax Amount $5,824
Tax Year 2019
Lot Size 8.999 Acres
Acres 9.0
Lot Dimensions 80' x 150' to 100' x 300'
Property Sub-Type Land
Source BRIGHT
Property Description
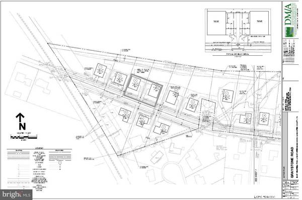
9 acres located along Graystone Road in East Petersburg Borough zoned R-1, with recorded final plan approval for 15 single family lots ranging in size from 10,000 SF to 30,000 SF. Buyer is responsible for site improvements, which consist of public water and public sewer hook-up from Graystone Road to all lots as well as storm water management and other associated work for the 15 lots. All lots are located in East Petersburg Elementary School District and East Hempfield High School District. Call Bob Wolf (717-940-4036) for engineering drawings and "estimated" site work costs.
Location
State PA
County Lancaster
Area East Petersburg Boro (10522)
Zoning R-1
Exterior
Fence Other
Utilities Available Sewer Available, Water Available
Water Access N
View Trees/Woods
Street Surface Paved
Road Frontage Public, State
Garage N
Building
Lot Description Backs to Trees, Open
Sewer Public Sewer
Water Public
Additional Building Above Grade, Below Grade
New Construction N
Schools
Elementary Schools East Petersburg
Middle Schools Centerville
High Schools Hempfield
School District Hempfield
Others
Tax ID 220-28906-0-0000 (TO BE REVISED)
Ownership Fee Simple
Acceptable Financing Cash
Horse Property N
Listing Terms Cash
Financing Cash
Special Listing Condition Standard
Read Less Info
Want to know what your home might be worth? Contact us for a FREE valuation!

Our team is ready to help you sell your home for the highest possible price ASAP

Get More Information




